全国茶楼楼凤品茶,上海914桑拿论坛,2025小姐威客兼职论坛,广深楼凤qm论坛最新活动

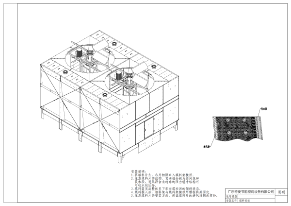
冷却塔填料安装示意图,冷却塔填料更换注意事项有哪些

发布者:广东特菱空调 发布时间:2022-05-30
冷却塔填料安装示意图,冷却塔填料更换注意事项有哪些

中央空调冷却器在工作过程中产生的热量通常是通过冷却水带走的。冷却塔的作用是用热交换冷凝器的冷却水和塔中的空气,使热量传递到空气中,并分散到大气中。冷却塔填料在增加散热、延长冷却水停留时间、增加换热面积、增加换热、均匀分布水等方面起着至关重要的作用。冷却塔填料的安装也与整个冷却塔安装的成功有关。接下来,我们将介绍安装冷却塔和更换冷却塔填料的注意事项。

要求冷却塔填料:

对中央空调冷却塔填料的要求要是重量轻、强度高、阻燃性好、耐腐蚀、设计先进、通风组小、亲水性强、接触面积大。

更换冷却塔填料的使用时间:

通常来说,中央空调冷却塔的填充料使用时间较长。选择质量好的填充料通??梢允褂?-5年以上,然后才需要更换。然而,如果它们在重复使用过程中得到适当的清洁和维护,它们可以一直使用。因此,找一家专业的维修服务公司制定专业的维修方案,可以保证填充料的无限使用寿命。

冷却塔填料的维护:

长期使用后,中央空调等原因,中央空调冷却塔是一种水处理设备,经过长期使用后,会出现污垢,也就是常说的结垢,会导致填充料老化脱落。这些问题似乎很小,但实际上会影响冷却塔的工作效率和使用寿命。因此,冷却塔填料必须定期清洗和维护,常用的方法是清洗填充料和水槽。

1.如果结垢过严重,可采用化学清洗法(用药剂冲洗)或物理方法(振动等)处理填充料上的水垢。),并考虑更换填充料。

2.水槽部需要清除产生的杂质。

3.排污管出口的杂质可在配管槽部打开,不排除的杂质可手动清除。

4.清洗过滤网填充料时,要注意其薄而脆弱的特性(多为PVC材料),谨慎处理。

冷却塔填料安装示意图

冷却塔实现三大要素的冷却:

冷空气与水的比比);冷空气与水接触的表面积;冷空气与水接触的时间。它是根据上述三个元素设计的。通过0.03MPa下高效低压雾化装置,将水喷射成0.5-1mm的雾滴,通过0.03MPa下高效低压雾化装置,将水喷射成0.5-1mm的雾滴,气水接触比聚氯乙烯填充氯乙烯填充物上的水分分布面积大10%;该装置采用顺向喷雾,有两个过程:冷却顺流和逆流,冷却时间比填充物长。

安装冷却塔填料时应注意哪些事项?

1.确保下柱和下进水管与地基接触良好,基础预埋钢板,平整基础安装表面,确保在同一水面上,下柱和下进水管轴垂直基础表面。

2.注意保证塔体组装后的直径,特别是上塔体出风口的直径误差应尽可能小。

3.当塔体分块组装连接时,应注意垫片的弧面与塔体的肋弧面粘结,并保证下壳组装的水密性。

4.风机应安装向上抽风,风机叶端和塔体之间的间隙应均匀,不超过100毫米。四片叶片应调整在同一角度,叶轮的旋转平面应垂直于中心线。

5.淋水填充料层表面要求平整,间距均匀。

6.选择循环泵时,应注意其流量与冷却水量一致。使用时,冷却塔应保持在设计量的5%以内,以防止水量过大,影响冷却效果。

7.电源应采取安全措施。电源线接好后,电机接线盒应采取密封措施,防止潮气进入,烧坏电机。

8.根据现场实际情况,可以通过改变法兰上螺孔的方向来调整进出水管的方向。

广东特陵空调公司从事中央空调的维护、清洁和维护、节能改造、销售和安装公司。我们拥有多年的冷却塔行业维修经验、一流的技术团队、完善的服务流程和一流的服务质量。在数万客户的一致认可下,我们坚持为客户提供超出预期的专业服务。您可以随时与我们联系,如果您有任何与中央空调冷却塔相关的问题和需求。

相关文章

冷却塔电机,冷却塔减速器,冷却塔风机安装图纸
冷却塔电机,冷却塔减速器,冷却塔风机安装图纸

恰当的冷却塔电机安装方法 冷却塔电机的电机轴是一个短轴,因此中等水平规定不高。只需应用直尺将其向下移动就可以?;魃璞刚鸲冉洗蟮脑倒蚀蟛糠质巧逃τ玫目招奶妓馗种帷R蛭『窈苡锌赡懿辉瘸?,震动不

特菱空调五一劳动节放假通知
特菱空调五一劳动节放假通知

  根据《国务院办公厅关于2022年部分节假日安排的通知》,广东特菱空调2022年五一劳动节假期安排如下:   一、2022年4月30日(星期六)至5月4日(

喜讯|特菱空调获得国家高新技术企业认证
喜讯|特菱空调获得国家高新技术企业认证

广东特菱节能空调设备有限公司通过国家高新技术企业认定备案,这是对公司近年来持续加大科技投入、大力强化发明专利、不断提升核心技术研发能力的充分认可和鼓励,将进一步推动公司在科技前沿、精细化建造等领域自

倾其所有也要把冷却塔配件做得好好的
倾其所有也要把冷却塔配件做得好好的

广东特菱空调是专门从事制冷设备生产、销售、安装、维修保养、制冷配套工程方案与施工、冷却塔维修改造为一体的专业性冷却塔厂家。公司产品有:圆型冷却塔、方型冷却塔、超低噪音冷却塔、工业冷却塔、高温冷却塔、

特菱空调|2022年端午节放假安排通知
特菱空调|2022年端午节放假安排通知

各部门、各位员工:   根据《国务院办公厅公布2022年放假安排》,结合公司的实际情况,广东特菱空调现将端午节期间放假安排通知如下:   一、全体员工6月3

2022年噪音新规《中华人民共和国噪声污染防治法》来了,噪声污染防治将有法可依
2022年噪音新规《中华人民共和国噪声污染防治法》来了,噪声污染防治将有法可依

??2022年噪音新规《中华人民共和国噪声污染防治法》来了,噪声污染防治将有法可依。 ??《中华人民共和国噪声污染防治法》今年6月5日起施行,《中华人民共和国环境噪声污染防治法》同时废止。近年来,广

冷却塔相关参数有哪些,冷却塔选型都需要哪些参数
冷却塔相关参数有哪些,冷却塔选型都需要哪些参数

工业生产中使用的冷却塔有多种型号可供选择,在选择时要综合考虑性能参数等方面,冷却塔选择的参数主要是需要冷却的设备类型.冷却量.进水温度和出水温度.当地湿球温度.泵和电机运行参数.水流速度.冷却塔容量

冷却塔品牌有哪些(冷却塔知名品牌)
冷却塔品牌有哪些(冷却塔知名品牌)

虽然高端冷却塔品牌具有高性能和良好的质量,但价格一直居高不下,这使得中小企业的采购停滞不前。我们如何找到一个高性价比的冷却塔,具有合适的价格和优异的性能?随着近年来中国制造业黄金含量的提高,中国制